Tropical Trail Village

A Cocoa Beach Area 55+ Mobile Home Community

 

HOMES FOR SALE

As of Winter 2020


One New home arrives soon in spring 2020.

Call us at (321) 452-4948

Tropical Trail Village


Call us...

(321) 452-4948


Write us...

info@TropicalTrailVillage.com


Visit us...

3535 N. Tropical Trail

Merritt Island, FL 32953


Click Here for a Google Map of our location

Tropical Trail Village LLC  (321) 452-4948 

Information on this website and pricing is subject to change including for typographical errors.

2020 Fleetwood Homes


   

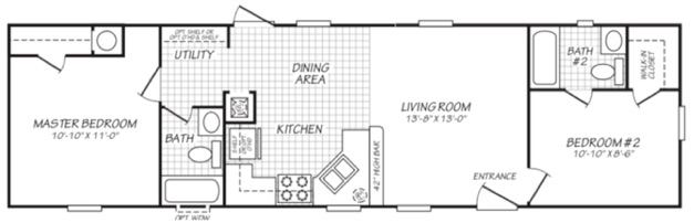
   Brand New Home   

    2 Bedrooms / 2 Bath

    About 710 Square Feet

    2 Suites at Separate ends of house

    Stainless Farmhouse Kitchen Sink

    Horizontal Drywall Upgrade

    Gray Paint Color with White Trim

    Modern Kitchen

    Includes a Dishwasher

    Wood Floor look throughout

    Includes skirting, AC, steps

    BONUS: CARPORT,

    CONCRETE DRIVEWAY

    & PORCH!


PURCHASE:   SOLD

   

(Home Sales By Florida Village Homes.  Subject to background check & approval.  Pricing as of Spring 2020, Subject to Change.  Pricing subject to home staying in current location--can not be moved.)

Photos show a Similar Home of Same Floorplan.  Actual home is under construction

Photos show a Similar Home of Same Floorplan.  Actual home is under construction.  The actual home will have additional upgrades not shown in these photos.